VATANDAŞLARIN SORUNU ÇÖZÜLDÜ
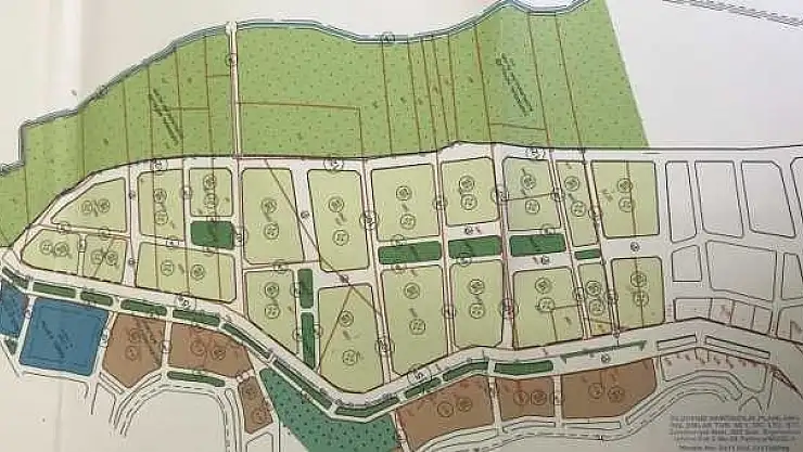
Fethiye Belediyesi tarafından Karagedik Mahallesi'nde 240 nolu uygulama bölgesinde yaklaşık 120 dönüm alanda 3194 sayılı imar yasasının 18. madde uygulama işlemi yapıldı. Mahalle sakinleri yapılan uygulamadan memnuniyetlerini ifade ettiler.
Fethiye Belediyesi tarafından Karagedik Mahallesi’nde 240 nolu uygulama bölgesinde yaklaşık 120 dönüm alanda 3194 sayılı imar yasasının 18. madde uygulama işlemi yapıldı. Mahalle sakinleri yapılan uygulamadan memnuniyetlerini ifade ettiler.
Bölgede 140 adet tapu üretildiğini ve vatandaşların taleplerini yerine getirdiklerini ifade eden Fethiye Belediyesi Plan ve Proje Müdürü Süreyya Alim, “Uzun yıllardır mahalle sakinlerinin imar uygulaması talebi bulunmaktaydı. Bugüne kadar 2B şartlarından dolayı, bölgede imar uygulaması gerçekleştirilememişti. Ancak son çıkan yasalardan sonra vatandaşın 2B sorunun çözülmesinin ardından Belediyemiz bu alanda imar uygulaması yaparak, bir sorunu daha çözdü. Üretilen bu parseller sonucu şehrimizde düzenli ve planlı yapılaşmanın önü açılmış olup, ekonomik alanda da bu bölgede yapılacak yapılaşmalarla sektöre döngü sağlandığını belirtebilirim. Vatandaşlarımıza hayırlı uğurlu olsun” dedi.

Yeşilüzümlü, Karaçulha, İnlice bölgesinde imar uygulamalarının devam ettiğini söyleyen Plan ve Proje Müdürü Süreyya Alim, bu bölgelerdeki çalışmalarında kısa vadede çözüleceğini ifade etti.
Bakmadan Geçme